Łódź, Polesie, Karolew, ok. Al. Włókniarzy

Dom na wynajem

Opis nieruchomości


Wolnostojący budynek na działalność  gospodarczą np. SZKOŁA, PRZEDSZKOLE, BIURO, USŁUGI, firma KOMPUTEROWA, firma ARCHITEKTONICZNA,  itp.

BUDYNEK na osiedlu mieszkaniowym KAROLEW, blisko Dworca Kaliskiego i Al. Włókniarzy

Trzy kondygnacje: parter, I piętro i II piętro , na każdej kondygnacji po ok.100 m, razem 300 m. 


PARKING dla NAJEMCÓW - 3 miejsca w cenie najmu



CENA : 10000 zł  + VAT + plus zużycie mediów

KAUCJA :  15 000 zł

- WOLNOSTOJĄCY budynek z parkingiem na osiedlu mieszkaniowym

- ROZKŁAD POMIESZCZEŃ.

PARTER  -  103 m : 4 POKOJE, pomieszczenie socjalne - KUCHNIA, WC z prysznicem, hol i klata schodowa,

I PIĘTRO - 102,60 m  : 4 POKOJE, pomieszczenie socjalne - KUCHNIA, WC z prysznicem, hol i klata schodowa,

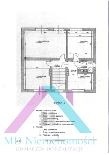
II PIĘTRO - 103,20 m :  sala konferencyjna,  2 pokoje, pomieszczenie socjalne - KUCHNIA, WC z prysznicem,

Wysokość pomieszczeń ok. 2,80 .


PARKING, w ramach czynszu najmu 3 miejsca


Możliwość montażu tablicy reklamowej na ogrodzeniu.

WYKOŃCZENIA i MEDIA :

- elektryczność, woda, kanalizacja, CO  i ciepła woda - SIEĆ MIEJSKA - własny węzeł cieplny
- OKNA PCV
- PODŁOGI - WYKŁADZINY i TERAKOTA


- ŚCIANY GŁADZIE GIPSOWE
- ŁAZIENKI I KUCHNIE  - glazury i terkoty
- klatka schodowa terakota


Bardzo blisko do tramwaju i autobusu.

300 m - BUDYNEK - DOM biurowy na ogrodzonej działce, wewnątrz osiedla mieszkaniowego, parking na Najemców, linie cyfrowe ISDN, alarm z monitoringiem.

DOBRY STANDARD. Blisko Dworca Kaliskiego i Al. Włókniarzy


PLANY W BIURZE.

- UWAGA!   Oferty prezentowane na naszych stronach nie stanowią oferty w rozumieniu Kodeksu Cywilnego, a są jedynie zaproszeniem do rokowań. Podane dane mają charakter wyłącznie informacyjny i mogą odbiegać od stanu faktycznego. Opis obiektu został sporządzony na podstawie informacji przekazanych przez Oferującego. Oferta może być już nieaktualna. Prosimy o telefon.

Nota prawna

Opis oferty zawarty na stronie internetowej sporządzany jest na podstawie oględzin nieruchomości oraz informacji uzyskanych od właściciela, może podlegać aktualizacji i nie stanowi oferty określonej w art. 66 i następnych K.C.

Szczegóły oferty

Symbol oferty PRO-DW-10821
Powierzchnia 300,00 m²
Powierzchnia działki 600 m²
Liczba pokoi 11
Rodzaj domu wolnostojący
Rodzaj budynku budynek wolnostojący
Technologia budowlana cegła
Kaucja zabezp. 15000
Standard
Opłaty wg liczników CO, prąd, woda
Liczba pięter w budynku 2
Stan lokalu odnowione
Okna PCV
Instalacje wymienione
Zagosp. działki zagospodarowana
Ukształtowanie działki płaska
Kształt działki prostokąt
Stan budynku do zamieszkania
Ogrodzenie działki mieszane
Rodzaj lokalu wielopoziomowy
Woda ciepła - miejska
Dojazd asfalt
Otoczenie osiedle
Ogrzewanie miejskie
Własny parking tak
Podłogi wykładzina
Prąd w budynku
Kanalizacja miejska

Pomieszczenia

Podłogi pokoi wykładzina
Typ kuchni umeblowana i wyposażona
Rodzaj kuchni jasna z oknem
Podłoga kuchni terakota
Typ łazienki razem z wc
Liczba łazienek 3
Glazura łazienki glazura
Podłoga łazienki terakota
Wyposażenie łazienki umywalka, WC, lustro, kabina prysznicowa

Napisz do nas

Proszę wypełnić to pole
Proszę wypełnić to pole
Proszę wypełnić to pole
Proszę wypełnić to pole
Trwa wysyłanie...

Ta strona wykorzystuje pliki cookies w celach statystycznych oraz w celu dostosowania naszych serwisów do indywidualnych potrzeb klientów. Zmiany ustawień dotyczących plików cookie można dokonać w dowolnej chwili modyfikując ustawienia przeglądarki. Korzystanie z tej strony bez zmian ustawień dotyczących cookies oznacza, że będą one zapisane w pamięci urządzenia.

rozumiem