Piotrków Trybunalski

Mieszkanie na sprzedaż

Opis nieruchomości

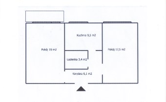
Mieszkanie dwupokojowe z osobną kuchnią.Balkon .
Powierzchnia 55,5 m2.PIERWSZE PIĘTRO w małym bloku z cegły,czteropiętrowym.

Lokalizacja Piotrków Trybunalski ul.Górna.Małe i ciche osiedle niskiej zabudowy wielorodzinnej.

Stan mieszkania: mieszkanie modernizowane systematycznie wg potrzeb właścicieli.Kuchnia w zabudowie z urządzeniami .W korytarzu i pokoju szafy stałej zabudowy stan b.dobry.
Drzwi zewnętrzne i wewnętrzne wymienione.Podłogi w pokojach panel.Kuchnia koryarz glazura.
Okna drewniane .Łazienka wymaga remontu.
Czynsz miesięczny bez wody 850 zł.Do mieszkania przynależy piwnica.

Mieszkanie bez obciążeń i zaległości. Odrębna własność z udziałem w gruncie. Księga Wieczysta założona.

Zapraszamy do obejrzenia!

Nota prawna

Opis oferty zawarty na stronie internetowej sporządzany jest na podstawie oględzin nieruchomości oraz informacji uzyskanych od właściciela, może podlegać aktualizacji i nie stanowi oferty określonej w art. 66 i następnych K.C.

Szczegóły oferty

Symbol oferty ATR-MS-3210
Powierzchnia 55,50 m²
Powierzchnia użytkowa 55,50 m²
Liczba pokoi 2
Rodzaj budynku blok
Standard
Opłaty wg liczników gaz, prąd, Woda ciepła, Woda zimna
Liczba pięter w budynku 3
Stan lokalu do odświeżenia
Stan prawny Odrębna własność lokalu
Mies. czynsz admin. 850 PLN
Balkon średni

Kalkulator kredytowy

PLN
%
Wysokość raty

Kalkulator kosztów

PLN
PLN
PLN
PLN
PLN
PLN
%
PLN
Podatek od czynności cywilno-prawnych
Taksa notarialna (opłata notarialna)
VAT od taksy notarialnej (opłaty notarialnej)
Wniosek do WKW
VAT od wniosku do WKW
Prowizja agencji nieruchomości
VAT od prowizji agencji nieruchomości
Wypisy aktu notarialnego - około
RAZEM (cena + opłaty)

Napisz do nas

Proszę wypełnić to pole
Proszę wypełnić to pole
Proszę wypełnić to pole
Proszę wypełnić to pole
Trwa wysyłanie...

Ta strona wykorzystuje pliki cookies w celach statystycznych oraz w celu dostosowania naszych serwisów do indywidualnych potrzeb klientów. Zmiany ustawień dotyczących plików cookie można dokonać w dowolnej chwili modyfikując ustawienia przeglądarki. Korzystanie z tej strony bez zmian ustawień dotyczących cookies oznacza, że będą one zapisane w pamięci urządzenia.

rozumiem