Łódź, Śródmieście, Teatr Wielki

Mieszkanie na sprzedaż

Opis nieruchomości

"Twoje Wymarzone Mieszkanie" w najmodniejszej części miasta.


Dwupokojowy apartament w nowej inwestycji DYFRAKCJA,
w sercu Nowego Centrum Łodzi, 
w sąsiedztwie Dworca Łódź Fabryczna, doskonała lokalizacja do zamieszkania, jak i inwestycyjnie - "pod wynajem"- zarówno krótko, jak i długoterminowy.

 Sprzedawany lokal w stanie deweloperskim.
Dogodna płatność:
- pierwsza wpłata ok. koniec lutego 2026 r.
- reszta ceny przy pozwoleniu na użytkowanie.




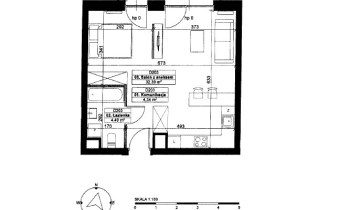
 Bardzo wygodna przestrzeń o pow. 41,22mkw z balkonem o ponadstandardowej powierzchni ok. 7 m2.


Mieszkanie składa się z:

 - SALONU z aneksem kuchennym

 - SYPIALNI
Z obydwu pokoi jest wyjście na balkon.


 - PRZEDPOKOJU -  
4,34mkw

 - ŁAZIENKI z wc -  
4,49mkw.


W lokalu zamontowano okna  nowej generacji, zapewniające doskonałą izolacje akustyczną i cieplną.                    
Do mieszkania przynależy miejsce parkingowe w garażu podziemnym apartamentowca, dodatkowo płatne 60.000 zł.

Planowana data oddania: lipiec 2026 r., lokal sprzedawany jest w stanie developerskim.


NOWOCZESNE UDOGODNIENIA:
  • Rowerownia
  • Wózkownia
  • Stacje ładowania
  • Cichobieżna winda.

NOWOCZESNE ROZWIĄZANIA BUDOWLANE:
  • Wysokiej jakości izolacje akustyczne i termiczne (energooszczędność).
  • Możliwość zainstalowania klimatyzacji.

LOKALIZACJA: ścisłe Centrum
  • 5 min do dworca PKP Łódź Fabryczna w przyszłości połączonego z ogólnopolską siecią CPK
  • 5 min do przystanków tramwajowych i autobusowych  z komunikacją we wszystkie kierunki miasta
  • 17 min do ul. Piotrkowskiej
  • 7 min do Centrum EC1 z Planetarium
  • ok. 700m do Galerii Łódzkiej
  • ok. 800m do MONOPOLIS
  • bliskość do uczelni wyższych, m.in. UŁ, UM i inne, niedaleko osiedle studenckie Lumumby
  • 12 min do do Teatru Wielkiego i Filharmonii Łódzkiej
  • niedaleko Park 3 Maja, park im. Staszica i jedyny łódzki park w stylu francuskim im. Matejki.
Z mieszkania rozpościera się piękny widok na Nowe Centrum Łodzi.


Zachęcamy do zapoznania się z rzutem mieszkania i zaproponowanym wykończeniem łazienki.

 
 
 
 
 

Nota prawna

Opis oferty zawarty na stronie internetowej sporządzany jest na podstawie oględzin nieruchomości oraz informacji uzyskanych od właściciela, może podlegać aktualizacji i nie stanowi oferty określonej w art. 66 i następnych K.C.

Szczegóły oferty

Symbol oferty ABL-MS-7136
Powierzchnia 41,22 m²
Liczba pokoi 2
Piętro 5
Rodzaj budynku apartamentowiec
Technologia budowlana cegła nowa
Garaż garaż podziemny
Stan lokalu deweloperski
Okna PCV
Balkon duży
Liczba balkonów 1
Widok panorama miasta
Woda ciepła - miejska
Otoczenie centrum miasta
Ogrzewanie C.O. miejskie
Winda tak
Liczba wind 2
Przystosowania dla niepełnosprawnych tak

Kalkulator kredytowy

PLN
%
Wysokość raty

Kalkulator kosztów

PLN
PLN
PLN
PLN
PLN
PLN
%
PLN
Podatek od czynności cywilno-prawnych
Taksa notarialna (opłata notarialna)
VAT od taksy notarialnej (opłaty notarialnej)
Wniosek do WKW
VAT od wniosku do WKW
Prowizja agencji nieruchomości
VAT od prowizji agencji nieruchomości
Wypisy aktu notarialnego - około
RAZEM (cena + opłaty)

Podobne oferty

mieszkanie na sprzedaż - Łódź, Śródmieście, ks. Ignacego Skorupki

mieszkanie na sprzedaż

Łódź, Śródmieście, ks. Ignacego Skorupki
4 pokoje 74,00 m2 7 418,92 zł/m2
mieszkanie na sprzedaż - Łódź

mieszkanie na sprzedaż

Łódź
3 pokoje 82,07 m2 5 787,74 zł/m2
mieszkanie na sprzedaż - Łódź, Śródmieście, Manhattan, Sienkiewicza

mieszkanie na sprzedaż

Łódź, Śródmieście, Manhattan, Sienkiewicza
3 pokoje 66,00 m2 6 818,18 zł/m2
mieszkanie na sprzedaż - Łódź, Śródmieście

mieszkanie na sprzedaż

Łódź, Śródmieście
3 pokoje 79,46 m2 7 991,44 zł/m2

Napisz do nas

Proszę wypełnić to pole
Proszę wypełnić to pole
Proszę wypełnić to pole
Proszę wypełnić to pole
Trwa wysyłanie...

Ta strona wykorzystuje pliki cookies w celach statystycznych oraz w celu dostosowania naszych serwisów do indywidualnych potrzeb klientów. Zmiany ustawień dotyczących plików cookie można dokonać w dowolnej chwili modyfikując ustawienia przeglądarki. Korzystanie z tej strony bez zmian ustawień dotyczących cookies oznacza, że będą one zapisane w pamięci urządzenia.

rozumiem